98 W 37th Avenue Vancouver, British Columbia V5Y 2N1
$2,798,000
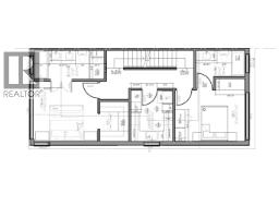
Live directly across from Queen Elizabeth Park in this rare, luxurious side-by-side duplex - an exclusive pre-sale opportunity in Vancouver´s coveted Westside. Thoughtfully designed with a spacious, house-like layout, this home features expansive floor-to-ceiling windows that frame lush park views and fill the interiors with natural light. Enjoy a sunny south-facing backyard, 3 generous bedrooms, 4 bathrooms, a full-size laundry room, and a chef-inspired kitchen with premium finishes, spacious patios and a large roof deck. Designed by Jaqueline Taggart, this project is set to become one of the Westside´s most distinguished duplex developments. Just steps from tennis and pickleball courts, the pitch and putt, Hillcrest Community Centre, dining, shopping, and more. Coming Spring 2026. (id:12562)
Property Details
| MLS® Number | R3045980 |
| Property Type | Single Family |
| Neigbourhood | Riley Park–Little Mountain |
| Amenities Near By | Golf Course, Recreation |
| Features | Central Location |
| Parking Space Total | 1 |
| View Type | View |
Building
| Bathroom Total | 4 |
| Bedrooms Total | 3 |
| Appliances | All, Dishwasher |
| Constructed Date | 2026 |
| Cooling Type | Air Conditioned |
| Fire Protection | Security System, Smoke Detectors, Sprinkler System-fire |
| Heating Type | Heat Pump |
| Size Interior | 1,920 Ft2 |
| Type | Duplex |
Parking
| Detached Garage |
Land
| Acreage | No |
| Land Amenities | Golf Course, Recreation |
| Size Frontage | 47 Ft |
| Size Irregular | 5011.61 |
| Size Total | 5011.61 Sqft |
| Size Total Text | 5011.61 Sqft |
https://www.realtor.ca/real-estate/28839643/98-w-37th-avenue-vancouver
Contact Us
Contact us for more information

Greg Marenco
Personal Real Estate Corporation, Greg Marenco Real Estate Group
www.gregmarenco.com/
5487 West Boulevard
Vancouver, British Columbia V6M 3W5
(604) 737-8865
(604) 737-8512
www.rspvan.com/





































































