801 618 Carnarvon Street New Westminster, British Columbia V3M 1E9
$853,000Maintenance,
$558.50 Monthly
Maintenance,
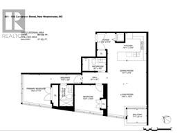
$558.50 MonthlyExperience luxurious urban living in this exceptional 2-bedroom apartment perched in downtown New West with unbelievable views of the city, river, bridges, see the entire city in a new way. Boasting a sizable 961 sqft interior with a stunning city view, this move-in ready unit features polished quartz countertops, sleek Kohler sinks, and energy-efficient Bosch appliances in the chic kitchen. The seamless flow from the bar seating area into the spacious living room exudes modern elegance. Enjoy the stylish cabinetry, thoughtful design accents, and a generous balcony for outdoor living. With its prime location and impressive amenities, this apartment presents an unparalleled opportunity for a sophisticated and rewarding lifestyle in the heart of New Westminster. (id:12562)
Property Details
| MLS® Number | R3012151 |
| Property Type | Single Family |
| Amenities Near By | Playground, Marina, Recreation, Shopping |
| Community Features | Pets Allowed |
| Features | Central Location, Private Setting, Elevator |
| Parking Space Total | 1 |
| Structure | Clubhouse |
| View Type | View |
Building
| Bathroom Total | 2 |
| Bedrooms Total | 2 |
| Amenities | Daycare, Exercise Centre, Guest Suite |
| Appliances | All |
| Constructed Date | 2024 |
| Cooling Type | Air Conditioned |
| Fire Protection | Smoke Detectors, Sprinkler System-fire |
| Heating Type | Forced Air |
| Size Interior | 961 Ft2 |
| Type | Apartment |
Parking
| Visitor Parking |
Land
| Acreage | No |
| Land Amenities | Playground, Marina, Recreation, Shopping |
| Landscape Features | Garden Area |
https://www.realtor.ca/real-estate/28426161/801-618-carnarvon-street-new-westminster
Contact Us
Contact us for more information

Borna Asi
Personal Real Estate Corporation
#300 - 1090 Homer Street
Vancouver, British Columbia V6B 2W9
(604) 239-1671
(604) 608-4898
www.zolo.ca/vancouver-real-estate





































































