52 430 Duncan Street New Westminster, British Columbia V3M 0M2
$760,000Maintenance,
$284.31 Monthly
Maintenance,
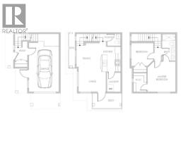
$284.31 MonthlyWelcome to Stanley Green in Queensborough! This spacious and bright 2-bedroom corner unit features a thoughtfully designed open-concept layout, modern kitchen, and southeast-facing windows that fill the home with natural light throughout the day. The unit includes convenient garage parking and is located in a welcoming, family-friendly neighbourhood. Families will appreciate the proximity to Queenborough Middle School and Queen Elizabeth Elementary, while shopping, dining, and services at Queensborough Landing are only minutes away. With quick access to Richmond, Burnaby, and Downtown Vancouver, this home offers the perfect balance of comfort, lifestyle, and location. (id:12562)
Property Details
| MLS® Number | R3052769 |
| Property Type | Single Family |
| Community Features | Pets Allowed With Restrictions, Rentals Allowed With Restrictions |
| Parking Space Total | 1 |
Building
| Bathroom Total | 2 |
| Bedrooms Total | 2 |
| Appliances | All |
| Constructed Date | 2020 |
| Heating Type | Radiant Heat |
| Size Interior | 964 Ft2 |
| Type | Row / Townhouse |
Parking
| Garage | 1 |
Land
| Acreage | No |
| Landscape Features | Garden Area |
https://www.realtor.ca/real-estate/28919469/52-430-duncan-street-new-westminster
Contact Us
Contact us for more information

Simon Lau
#215 - 8600 Cambie Road
Richmond, British Columbia V6X 4J9
(604) 999-8882
(604) 545-0388































