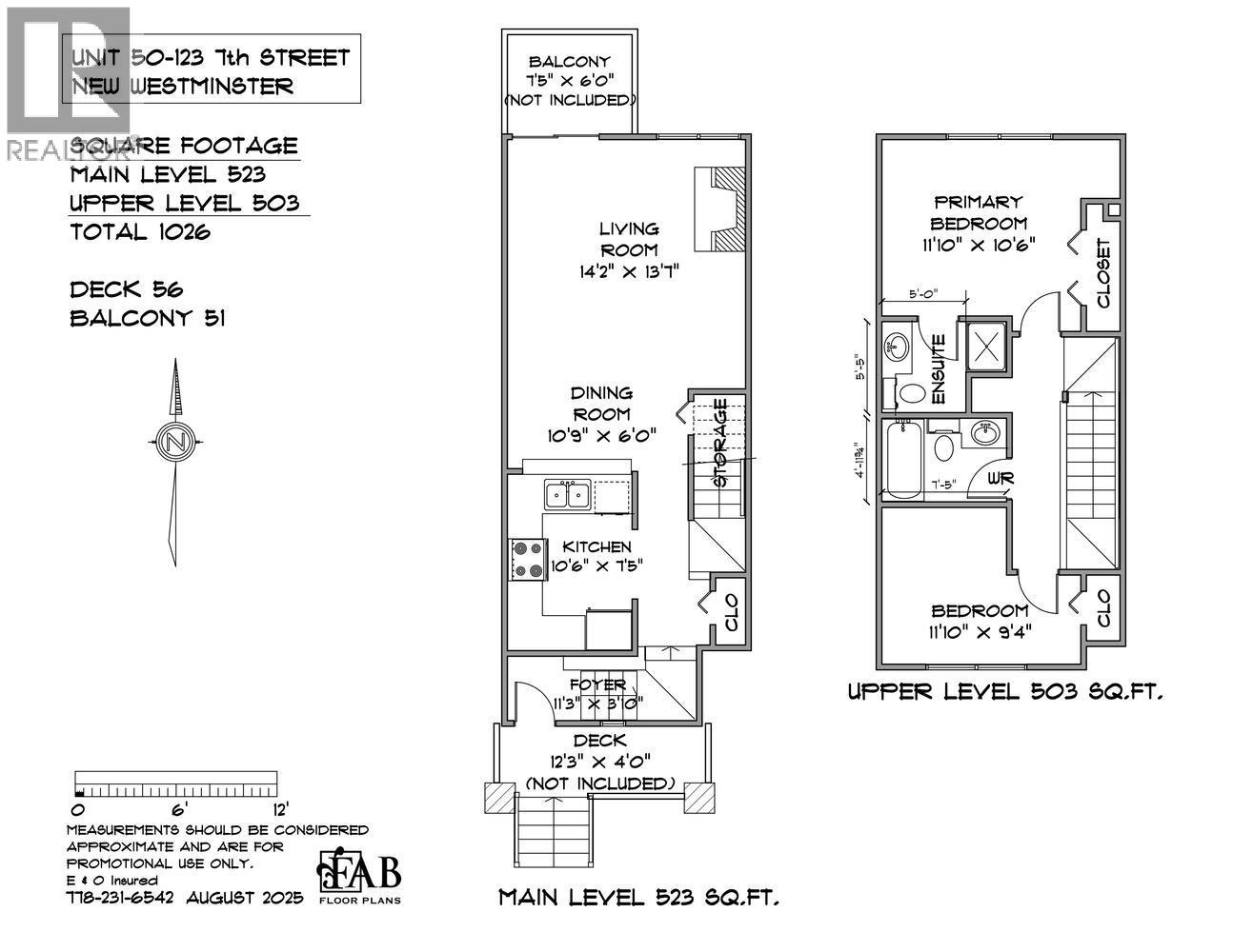
50 123 Seventh Street New Westminster, British Columbia V3M 6Y2
$538,000Maintenance,
$552.62 Monthly
Maintenance,
$552.62 MonthlyWelcome to Royal City Terrace, a well-managed townhouse community in New Westminster´s Brow of the Hill neighborhood. This bright 2-bedroom, 2-bathroom home offers 1,026 sq. ft. over two levels. Built in 1999, it features electric baseboard heating, a durable stucco and wood exterior, and asphalt shingle roofing. Includes one common property parking stall (#30); no storage locker. Close to parks, schools, shopping, and transit, this is a great fit for first-time buyers, downsizers, or investors seeking a low-maintenance home in a central location. Keys at ReMax All Points. Mon. to Fri. 9 to 5. // Sat. & Sun. 10 to 4. Tks Luke (id:12562)
Property Details
| MLS® Number | R3046279 |
| Property Type | Single Family |
| Amenities Near By | Recreation |
| Community Features | Pets Allowed With Restrictions, Rentals Allowed With Restrictions |
| Features | Central Location, Private Setting, Gated Community |
| Parking Space Total | 1 |
| View Type | View |
Building
| Bathroom Total | 2 |
| Bedrooms Total | 2 |
| Amenities | Laundry - In Suite |
| Architectural Style | 2 Level |
| Constructed Date | 1999 |
| Heating Fuel | Electric |
| Heating Type | Baseboard Heaters |
| Size Interior | 1,026 Ft2 |
| Type | Row / Townhouse |
Land
| Acreage | No |
| Land Amenities | Recreation |
https://www.realtor.ca/real-estate/28844250/50-123-seventh-street-new-westminster
Contact Us
Contact us for more information

R.p. Luke
Personal Real Estate Corporation
www.teamluke.ca/
22308 Dewdney Trunk Road
Maple Ridge, British Columbia V2X 3J2
(604) 466-2838
(604) 466-2868
www.remax-lifestyles.com































































