43 2035 Martens Street Abbotsford, British Columbia V2T 6M4
$149,990
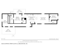
BEST VALUE IN ABBOTSFORD! Beautifully maintained 2 bed, 2 bath & Den home in the quiet 55+ community of Maplewood Estates in Abbotsford! This spacious home features a huge living room with gas fireplace, a den & laundry area, two bedrooms with their own ensuite and walk-in shower. Many upgrades including new driveway, furnace, hot water tank, updated kitchen, with pullout lazy susan, drawers-in-drawers, induction cooktop, wall oven, stainless steel appliances, LED lighting, smart thermostat and insink garbage disposal. Enjoy a large yard perfect for gardening, large front patio and side deck, wired workshop, and outdoor shed. Wheelchair-ready layout. One small dog allowed (height restriction), no rentals. Pad rent $995/month. BONUS: SELLER WILL PAY 6 MONTHS PAD RENT until April 15, 2026!! (id:12562)
Property Details
| MLS® Number | R3099013 |
| Property Type | Single Family |
| Neigbourhood | Clearbrook |
| Community Features | Age Restrictions, Pets Allowed With Restrictions |
| Parking Space Total | 3 |
| Structure | Workshop |
Building
| Bathroom Total | 2 |
| Bedrooms Total | 2 |
| Age | 46 Years |
| Appliances | Washer, Dryer, Refrigerator, Stove, Dishwasher, Storage Shed |
| Architectural Style | Other, Ranch |
| Basement Development | Unknown |
| Basement Features | Unknown |
| Basement Type | None (unknown) |
| Construction Style Attachment | Detached |
| Fire Protection | Smoke Detectors |
| Fireplace Present | Yes |
| Fireplace Total | 1 |
| Heating Fuel | Natural Gas |
| Heating Type | Forced Air |
| Size Interior | 1,285 Ft2 |
| Type | Manufactured Home |
| Utility Water | Municipal Water |
Parking
| Carport |
Land
| Acreage | No |
| Sewer | Sanitary Sewer |
Utilities
| Electricity | Available |
| Natural Gas | Available |
| Water | Available |
https://www.realtor.ca/real-estate/29463246/43-2035-martens-street-abbotsford
Contact Us
Contact us for more information

Jay Ilhareguy
jayilhareguy.remaxmagnoliarealty.com/
33090 1st Avenue
Mission, British Columbia V2V 1G3
(778) 598-1778
www.remaxmagnoliarealty.com/















































































