38037 Keel Way Squamish, British Columbia V8B 2A1
$975,000Maintenance,
$283.43 Monthly
Maintenance,
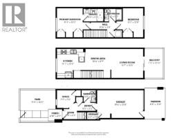
$283.43 MonthlyWelcome to SEAandSKY-where lifestyle meets adventure. This 2 bed + den, 2.5 bath townhome offers ~1,200 sqft of thoughtfully upgraded living. Featuring laminate flooring throughout, a bright open-concept main floor with built-in bench seating topped with flamed black granite, and a dedicated office space with a custom desk. The kitchen includes stainless steel Samsung appliances and flows seamlessly into the living area. Enjoy a southeast-facing balcony with great sun and views of the Chief. Additional highlights include an epoxy garage floor and custom garage storage. Steps to the future amenity centre and pedestrian bridge, with easy access to Vancouver and Whistler. (id:12562)
Property Details
| MLS® Number | R3114606 |
| Property Type | Single Family |
| Amenities Near By | Playground, Marina, Recreation, Shopping, Ski Hill |
| Community Features | Pets Allowed With Restrictions, Rentals Allowed With Restrictions |
| Features | Central Location |
| Parking Space Total | 2 |
| Pool Type | Outdoor Pool |
Building
| Bathroom Total | 3 |
| Bedrooms Total | 2 |
| Amenities | Daycare, Exercise Centre, Recreation Centre, Restaurant |
| Appliances | All |
| Constructed Date | 2023 |
| Fire Protection | Smoke Detectors, Sprinkler System-fire |
| Heating Type | Baseboard Heaters |
| Size Interior | 1,204 Ft2 |
| Type | Row / Townhouse |
Parking
| Garage | |
| Carport |
Land
| Acreage | No |
| Land Amenities | Playground, Marina, Recreation, Shopping, Ski Hill |
https://www.realtor.ca/real-estate/29642115/38037-keel-way-squamish
Contact Us
Contact us for more information

Art Power
artpowerrealty.com/
www.instagram.com/artpowerrealty/
1388 Main Street, Po Box #537
Squamish, British Columbia V8B 1A4
(604) 398-7999
www.stilhavn.com/























































