330 550 Sixth Street New Westminster, British Columbia V3L 3B7
$42,000 Yearly
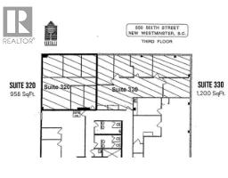
Top floor corner office space available in the heart of Uptown New Westminster's shopping district and financial services sector right above CIBC bank. Available immediately in the Sixth & Sixth Building features professional lobby with directory, elevator service and after hours intercom. The 1,200 Sq.Ft. space includes 4 offices with large windows, an open lobby/reception area, server closet, and large boardroom plus common area washrooms on the same floor. The building also has secure front and rear access plus parking available in a secure and managed lot. Rent includes heat, lighting, A/C and full janitorial services. Conveniently located in very busy and popular location near all major banks, restaurants, shopping, cafes, plus quick access to Bus & Skytrain. **Can be combined with Unit 320 (C8071326) for a total of 2,158 Sq.Ft including 3/4 more offices, kitchen/break room and open reception area*** (id:12562)
Property Details
| MLS® Number | C8071327 |
| Property Type | Office |
| Features | Passenger Elevator |
Building
| Constructed Date | 1962 |
| Fire Protection | Alarm System |
Land
| Acreage | No |
| Zoning Description | C-3 |
https://www.realtor.ca/real-estate/28716603/330-550-sixth-street-new-westminster
Contact Us
Contact us for more information

Ryan Dhaliwal
Personal Real Estate Corporation
(604) 719-2805
www.ryandhaliwal.com/
105 - 7928 128 Street
Surrey, British Columbia V3W 4E8
(604) 599-4888
(604) 507-8851
www.c21coastal.ca/



























