303 5779 Birney Avenue Vancouver, British Columbia V6S 0A3
$769,000Maintenance,
$423.13 Monthly
Maintenance,
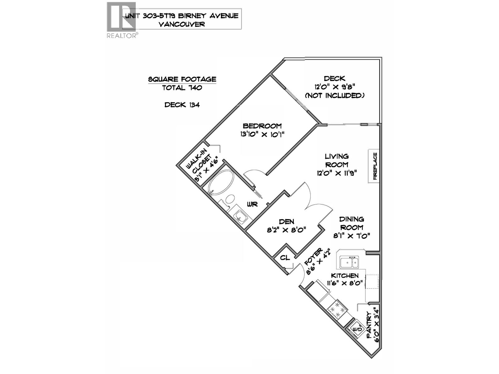
$423.13 MonthlyPathways by Georgie award winning Adera Developments. Quality finished low rise concrete construction in the heart of UBC's Wesbrook neighbourhood .Steps to shopping, restaurants, community centre and minutes to U. Hill School. Large open layout plan 1 bedroom and den with great balcony complete with lovely courtyard outlook. Open kitchen with stainless steel appliances, gas cooking, breakfast bar, maple cabinets, and extra storage / laundry / pantry. Cozy living area with gas fireplace and formal dining area. Great primary suite with walk-in closet. 1 parking + TWO storage lockers. Super charming! (id:12562)
Property Details
| MLS® Number | R3113106 |
| Property Type | Single Family |
| Neigbourhood | UBC |
| Amenities Near By | Recreation, Shopping |
| Community Features | Pets Allowed With Restrictions, Rentals Allowed With Restrictions |
| Features | Central Location, Elevator |
| Parking Space Total | 1 |
Building
| Bathroom Total | 1 |
| Bedrooms Total | 1 |
| Amenities | Laundry - In Suite, Recreation Centre |
| Appliances | All |
| Constructed Date | 2008 |
| Heating Fuel | Natural Gas |
| Size Interior | 740 Ft2 |
| Type | Apartment |
Land
| Acreage | No |
| Land Amenities | Recreation, Shopping |
https://www.realtor.ca/real-estate/29625985/303-5779-birney-avenue-vancouver
Contact Us
Contact us for more information

Jeff Fitzpatrick
Personal Real Estate Corporation
www.jefffitzpatrick.com/
2416 Marine Drive
West Vancouver, British Columbia V7V 1L1
(778) 379-1785
(604) 622-7027
vancouver.evcanada.com/

























































