300 8411 Bridgeport Road Richmond, British Columbia V6X 1R7
$6,980,000
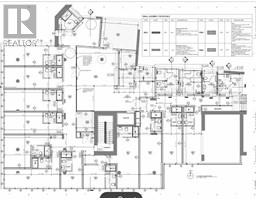
Small hotel operators or investors ATTENTION, A rare opportunity to operate short-term rentals in Richmond. Approval plan with 13 suites and a communal kitchen. Potential cap 10%. EXCLUSIVE elevator directly go the Level 3. The building located minutes from YVR airport just off Bridgeport Rd and No. 3 Rd. Improved with a spacious, opened and functional layout. Fantastic river, city and Mountain View. Five star amenities at International Trade Centre include top tier restaurants, hotel, whisky bar, and more. Strategic location, within 10 minutes walk to Bridgeport SkyTrain Station and River Rock Casino. 5 min drive to YVR airport, central Richmond, Vancouver, and easy highway access. (id:12562)
Property Details
| MLS® Number | C8068806 |
| Property Type | Retail |
Building
| Constructed Date | 2019 |
| Size Interior | 6,801 Ft2 |
Land
| Acreage | No |
| Zoning Description | Zc33 |
https://www.realtor.ca/real-estate/28244701/300-8411-bridgeport-road-richmond
Contact Us
Contact us for more information

Pansy Chen
Personal Real Estate Corporation
#290 - 3631 No 3 Road
Richmond, British Columbia V6X 2B9
(604) 370-2111
www.remaxcrest.ca/





