25700 116 Avenue Maple Ridge, British Columbia V4R 1Z6
$1,649,900
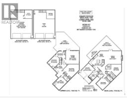
Spacious family home in the quiet community of Websters Corners. Set on a private SOUTH 1.11-acre lot backing onto Kanaka Creek Regional Park, this property offers space, privacy, and flexibility. Open-concept kitchen and living plan, accented by durable slate flooring and a striking custom stone fireplace. 4 bedrooms and 3 bathrooms with 2 bedrooms up and 2 & den down, including a main-floor primary with walk-in closet and ensuite. The walk-out basement offers great potential for extended family or a future suite. Large games room, covered patio area. New windows, new hot water tank, and poly-B plumbing replaced add peace of mind. The large detached shop with 240V power, heated office, & mezzanine is perfect for vehicles, hobbies, or storage. A rare acreage opportunity close to town (id:12562)
Property Details
| MLS® Number | R3107486 |
| Property Type | Single Family |
| Amenities Near By | Recreation |
| Features | Private Setting |
| Parking Space Total | 10 |
Building
| Bathroom Total | 3 |
| Bedrooms Total | 4 |
| Amenities | Laundry - In Suite |
| Appliances | All |
| Architectural Style | Bungalow |
| Basement Development | Finished |
| Basement Features | Unknown |
| Basement Type | Full (finished) |
| Constructed Date | 1989 |
| Construction Style Attachment | Detached |
| Fireplace Present | Yes |
| Fireplace Total | 1 |
| Heating Fuel | Natural Gas |
| Heating Type | Forced Air |
| Stories Total | 1 |
| Size Interior | 3,299 Ft2 |
| Type | House |
Parking
| Garage | 2 |
| R V |
Land
| Acreage | Yes |
| Land Amenities | Recreation |
| Size Frontage | 264 Ft ,6 In |
| Size Irregular | 1.11 |
| Size Total | 1.11 Ac |
| Size Total Text | 1.11 Ac |
https://www.realtor.ca/real-estate/29567205/25700-116-avenue-maple-ridge
Contact Us
Contact us for more information

Bianca Myddleton
www.535sold.com/
www.facebook.com/WhiteRockSouthSurreyRealtor/
2 - 15223 Pacific Avenue
White Rock, British Columbia V4B 1P8
(604) 541-7502
thebchomes.com/















































































