2153/2158/2258 21320 Westminster Highway Richmond, British Columbia V6V 2X5
$3,399,000Maintenance,
$2,644.27 Monthly
Maintenance,
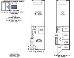
$2,644.27 MonthlyRARE OPPORTUNITY to purchase 3 adjacent strata lots totaling 6,750 SF plus 6,000 SF SECURE GATED COMPOUND. HIGHWAY FRONTAGE-Strategically located in the center of East Richmond providing excellent access to Westminster Hwy & Hwy 91 (East West Connector), the premise is within minutes of the Alex Fraser, Queensborough & Knight Street Bridges. ZI-1 zoning allowing for service oriented INDUSTRIAL, office use including: VEHICLE sales/rental, MANUFACTURING-custom indoor, industrial-general, office, recreation-indoor, health service/minor, child care. Large indoor showroom with bay door 15' X 15' & 10' X 10' door openings plus 2 large mezzanine/office areas on lower floor, 9 offices, 4 two piece washrooms plus staff lunchroom upstairs. 11 parking stalls & 12 rented spots $275 per month PLUS over 6,000 SF of parking in compound (SQUEEZE 35 CARS). 3 strata lots with 4 civic addresses. (id:12562)
Property Details
| MLS® Number | C8071517 |
| Property Type | Industrial |
| Communication Type | Internet Access |
| Road Type | Paved Road |
| Storage Type | Outside Storage |
Building
| Amenities | Street Lighting |
| Constructed Date | 1997 |
| Fire Protection | Alarm System |
| Size Interior | 6,750 Ft2 |
Land
| Acreage | No |
| Sewer | Storm Sewer |
| Zoning Description | Zi-1 |
Utilities
| Cable | At Lot Line |
| Electricity | Available |
| Water | At Lot Line |
| Telephone | Available |
https://www.realtor.ca/real-estate/28741101/215321582258-21320-westminster-highway-richmond
Contact Us
Contact us for more information

Jenny Matches
Personal Real Estate Corporation - Advantage Home Team
(604) 597-7771
www.the-a-team.ca/
@advantagehometeam/
11925 80 Avenue
Delta, British Columbia V4C 1Y1
(604) 590-4888
(604) 597-7771
www.rprdelta.com/

















































