2107 4465 Juneau Street Burnaby, British Columbia V5C 0L8
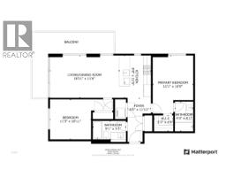
2 Bedroom 2 Bathroom 918 ft2
Air Conditioned Heat Pump
$828,000Maintenance,
$716.83 Monthly
Maintenance,
$716.83 MonthlyNew highrise Juneau built by renowned Amacon. Rare sub-penthouse offering spacious 2 bed/2 bath, an oversized panoramic balcony with unparalleled views. Top of the line finishings and appliances throughout. Open concept kitchen, 9 ft ceilings, central AC/Heat. Big amenity spaces include gym, yoga room, party room. Situated in the heart of Brentwood, just steps from the new Brentwood Mall and SkyTrain station, this residence offers unparalleled convenience (id:12562)
Property Details
| MLS® Number | R3098969 |
| Property Type | Single Family |
| Amenities Near By | Recreation, Shopping |
| Community Features | Pets Allowed |
| Features | Central Location, Elevator |
| Parking Space Total | 1 |
| View Type | View |
Building
| Bathroom Total | 2 |
| Bedrooms Total | 2 |
| Amenities | Exercise Centre, Laundry - In Suite, Recreation Centre |
| Appliances | All |
| Constructed Date | 2020 |
| Cooling Type | Air Conditioned |
| Heating Type | Heat Pump |
| Size Interior | 918 Ft2 |
| Type | Apartment |
Parking
| Underground |
Land
| Acreage | No |
| Land Amenities | Recreation, Shopping |
https://www.realtor.ca/real-estate/29459430/2107-4465-juneau-street-burnaby
Contact Us
Contact us for more information

Will Deng
Personal Real Estate Corporation
Parallel 49 Realty
#828 - 1200 West 73rd Avenue
Vancouver, British Columbia V6P 6G5
#828 - 1200 West 73rd Avenue
Vancouver, British Columbia V6P 6G5
(604) 566-7776
www.p49realestate.com/















































