190 12122 Horseshoe Way Richmond, British Columbia V7A 4V1
$2,250,000Maintenance,
$673.34 Monthly
Maintenance,
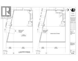
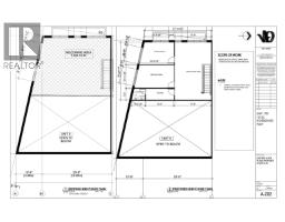
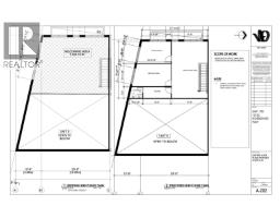
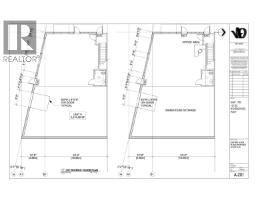
$673.34 MonthlyCompleted in 2024, this 3,262 sq. ft. industrial strata unit at Ironwood Landing in South Richmond offers a highly functional and modern workspace. The property includes 2,219 sq. ft. of warehouse space and a 1,043 sq. ft. mezzanine office, built with concrete tilt-up construction. Features include glazed grade-level loading doors, 23' clear ceiling height, built-in storage racks, and forklift power outlets. The modern office area is equipped with automated blinds, CCTV security, smart locks, and intelligent lighting control, with separate access for convenience. IB-1 zoning permits a wide range of business uses, complemented by ample parking and excellent access to Hwy 99 and Vancouver International Airport. This property is an ideal location for warehousing, logistics, office, education, or other compatible business operations. (id:12562)
Business
| Business Type | Service |
| Business Sub Type | Plumbing |
Property Details
| MLS® Number | C8071426 |
| Property Type | Industrial |
| Communication Type | Internet Access |
Building
| Constructed Date | 2024 |
| Size Interior | 3,262 Ft2 |
Land
| Acreage | No |
| Zoning Description | Ib-1 |
Utilities
| Electricity | Available |
| Natural Gas | Available |
https://www.realtor.ca/real-estate/28729029/190-12122-horseshoe-way-richmond
Contact Us
Contact us for more information

Jacky Wu
www.youzang.ca/
#208 - 7080 River Road
Richmond, British Columbia V6X 1X5
(604) 712-0000
www.youlive.ca















































