1577 E 26th Avenue Vancouver, British Columbia V5N 2W1
$1,298,000
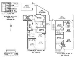
Court-ordered foreclosure sale in a prime East Vancouver location. This property features a main floor with three bedrooms and a four-piece bathroom, and a fully self-contained lower level with a private entrance, a four-bedroom suite currently operating as an Airbnb, a garage, and storage. Laser floor plans and a virtual tour are available. Ideally situated near Save-On Foods, the Vancouver Public Library, fitness centers, transit, and Kingcrest Park. Located within the sought-after catchment areas of Lord Selkirk Elementary and Gladstone High School. Not sure how the foreclosure process works? It´s straightforward-feel free to call me with any questions. Air B&B. 48 Hours' Notice for all showings. Thanks, Luke. (id:12562)
Property Details
| MLS® Number | R2996271 |
| Property Type | Single Family |
| Neigbourhood | Knight |
| Amenities Near By | Shopping |
| Features | Central Location, Treed |
| Parking Space Total | 1 |
Building
| Bathroom Total | 2 |
| Bedrooms Total | 7 |
| Amenities | Guest Suite, Laundry - In Suite |
| Architectural Style | Bungalow |
| Basement Development | Unknown |
| Basement Features | Unknown |
| Basement Type | Crawl Space (unknown) |
| Constructed Date | 1910 |
| Construction Style Attachment | Detached |
| Fireplace Present | Yes |
| Fireplace Total | 1 |
| Heating Fuel | Electric |
| Heating Type | Baseboard Heaters |
| Stories Total | 1 |
| Size Interior | 1,974 Ft2 |
| Type | House |
Parking
| Carport |
Land
| Acreage | No |
| Land Amenities | Shopping |
| Size Irregular | 2491 |
| Size Total | 2491 Sqft |
| Size Total Text | 2491 Sqft |
https://www.realtor.ca/real-estate/28235886/1577-e-26th-avenue-vancouver
Contact Us
Contact us for more information

R.p. Luke
Personal Real Estate Corporation
www.teamluke.ca/
22308 Dewdney Trunk Road
Maple Ridge, British Columbia V2X 3J2
(604) 466-2838
(604) 466-2868
www.remax-lifestyles.com













































































