110 45746 Keith Wilson Road, Vedder Crossing Chilliwack, British Columbia V2R 0X3
$549,000
This two bedroom plus den residence sits in the sought after, upscale community of Englewood Courtyard. No detail was overlooked, featuring quartz countertops, stainless steel appliances, and a floor to ceiling stone fireplace in the living room. A standout feature of this ground level home is the spacious, turfed and fenced yard, offering seamless indoor/outdoor living with a patio and abundant natural light. Two storage lockers are included, one across the hall and another located in front of the underground parking stall. Pets are permitted. The lease fee is $151.14 per month and HOA fees are $397.58 monthly. The building includes a car wash area, woodworking shop, and a highly active community clubhouse for resident enjoyment. Come see it for yourself. Today!!! (id:12562)
Property Details
| MLS® Number | R3073945 |
| Property Type | Single Family |
| Neigbourhood | Sardis |
| Storage Type | Storage |
| Structure | Clubhouse |
| View Type | Mountain View |
Building
| Bathroom Total | 2 |
| Bedrooms Total | 2 |
| Amenities | Laundry - In Suite |
| Appliances | Washer, Dryer, Refrigerator, Stove, Dishwasher |
| Basement Type | None |
| Constructed Date | 2017 |
| Construction Style Attachment | Attached |
| Cooling Type | Central Air Conditioning |
| Fireplace Present | Yes |
| Fireplace Total | 1 |
| Heating Fuel | Electric, Natural Gas |
| Heating Type | Heat Pump |
| Stories Total | 4 |
| Size Interior | 1,135 Ft2 |
| Type | Apartment |
Parking
| Underground |
Land
| Acreage | No |
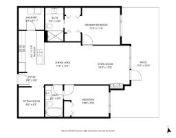
Rooms
| Level | Type | Length | Width | Dimensions |
|---|---|---|---|---|
| Main Level | Kitchen | 8 ft | 12 ft ,9 in | 8 ft x 12 ft ,9 in |
| Main Level | Dining Room | 11 ft ,6 in | 13 ft ,1 in | 11 ft ,6 in x 13 ft ,1 in |
| Main Level | Living Room | 15 ft ,3 in | 13 ft ,5 in | 15 ft ,3 in x 13 ft ,5 in |
| Main Level | Den | 8 ft | 9 ft ,2 in | 8 ft x 9 ft ,2 in |
| Main Level | Laundry Room | 8 ft | 6 ft ,11 in | 8 ft x 6 ft ,11 in |
| Main Level | Primary Bedroom | 17 ft ,4 in | 11 ft ,6 in | 17 ft ,4 in x 11 ft ,6 in |
| Main Level | Bedroom 2 | 14 ft | 9 ft ,9 in | 14 ft x 9 ft ,9 in |
https://www.realtor.ca/real-estate/29187712/110-45746-keith-wilson-road-vedder-crossing-chilliwack
Contact Us
Contact us for more information

Ann Griffiths
520 - 45715 Hocking Av
Chilliwack, British Columbia V2P 6Z6
(604) 393-7880
www.selectrealestate.ca













































































