1 2559 W King Edward Avenue Vancouver, British Columbia V6L 1T5
$1,988,000Maintenance,
$100 Monthly
Maintenance,
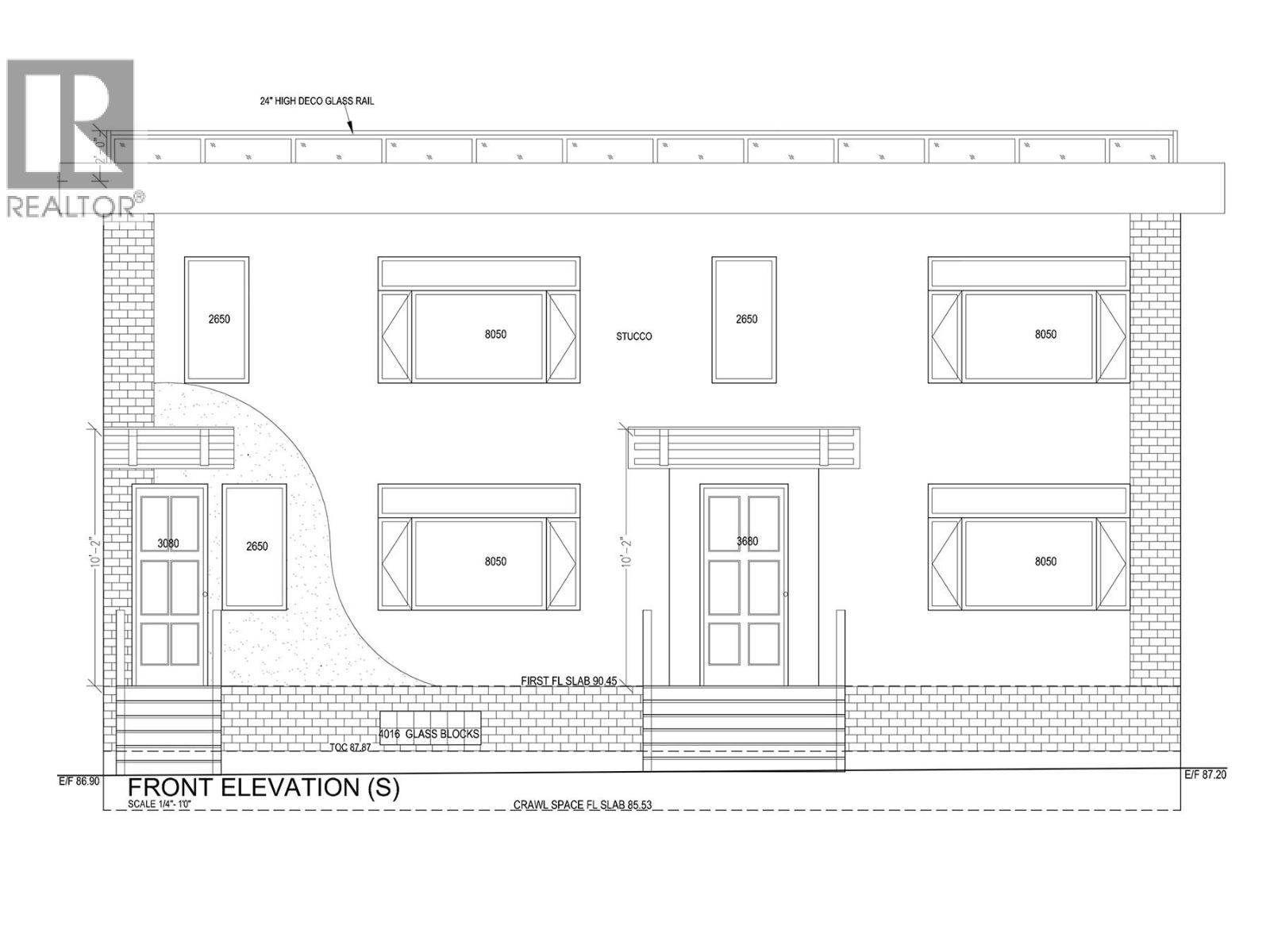
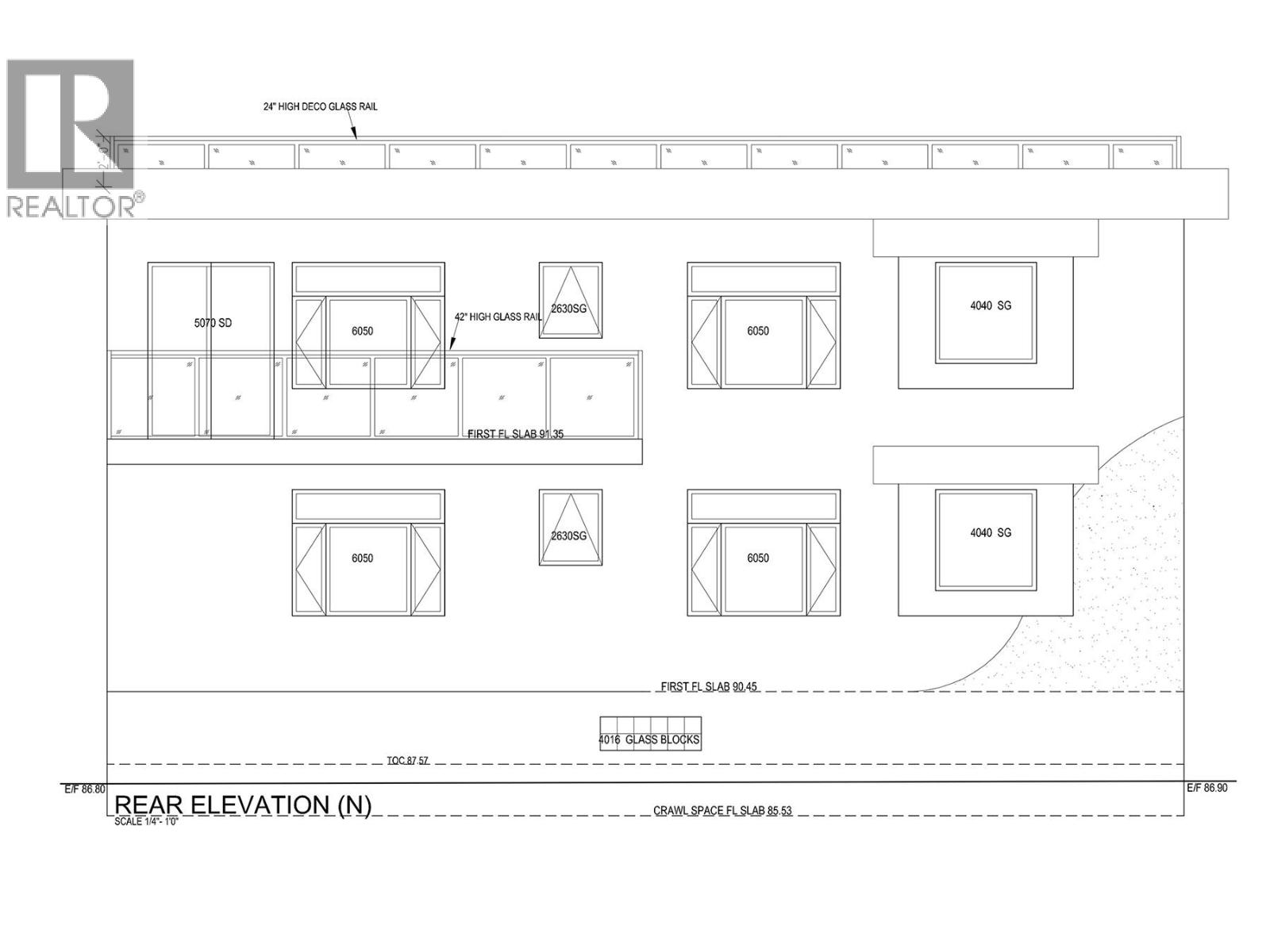
$100 MonthlyWelcome to a brand new construction in the prestigious Arbutus neighborhood of Vancouver West. (3Bed 2 Bath) The Upper Floor duplex offers ample living space, including a master bedroom completed with a walk-in closet, ensuite bathroom, and a great view to the north. Esthetically pleasing, this location is unmatched in many ways with its quiet tree-lined avenue, close proximity Prince of Wales Secondary, Trafalgar Elementary, Kitsilano & Kerrisdale shopping, amongst top private schools - Easy access to parks, shops, and transit. Duplex comes with ~480 SQFT of storage crawl space, enough for a family to stow away Christmas trees, seasonal decoration, and other family treasures. Book your new life starts now. (id:12562)
Property Details
| MLS® Number | R3069826 |
| Property Type | Single Family |
| Neigbourhood | Arbutus Ridge |
| Parking Space Total | 1 |
| View Type | View |
Building
| Bathroom Total | 2 |
| Bedrooms Total | 3 |
| Appliances | All |
| Architectural Style | 2 Level |
| Basement Development | Finished |
| Basement Features | Unknown |
| Basement Type | Crawl Space (finished) |
| Constructed Date | 2026 |
| Cooling Type | Air Conditioned |
| Fire Protection | Security System, Smoke Detectors, Sprinkler System-fire |
| Heating Fuel | Electric |
| Heating Type | Heat Pump |
| Size Interior | 1,744 Ft2 |
| Type | Duplex |
Land
| Acreage | No |
| Size Frontage | 51 Ft |
| Size Irregular | 6219 |
| Size Total | 6219 Sqft |
| Size Total Text | 6219 Sqft |
https://www.realtor.ca/real-estate/29133823/1-2559-w-king-edward-avenue-vancouver
Contact Us
Contact us for more information

Jack Tsai
Personal Real Estate Corporation
www.jacktsai.ca/
#205 - 2607 East 49th Avenue
Vancouver, British Columbia V5S 1J9
(604) 257-8888
(604) 257-8889
westcoastkillarney.sutton.com/



